Se você quer aprender como fazer projeto elétrico residencial de forma prática, organizada e profissional, este artigo vai te mostrar exatamente o caminho.
Hoje, mais do que apenas ligar fios, o eletricista precisa saber estruturar um projeto completo, seguindo normas, garantindo segurança e entregando um material técnico bem apresentado ao cliente.
Além disso, dominar como fazer projeto elétrico residencial permite que você cobre mais caro e se posicione como um profissional diferenciado no mercado.
👉 E o melhor: utilizando ferramentas como o eCAD Labs, é possível criar um projeto completo em MENOS de 20 MINUTOS, com cálculos automáticos e organização profissional.
Portanto, você vai aprender o passo a passo de um projeto com 5 cômodos:
E ainda considerando o corredor como área de circulação, o que também impacta diretamente no projeto.
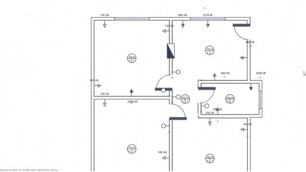
Antes de tudo, o primeiro passo para entender como fazer projeto elétrico residencial é trabalhar a partir da planta do imóvel. Isso porque é ela que serve como base para toda a distribuição elétrica.
Você pode seguir por dois caminhos:
No entanto, utilizar uma planta base é sempre a melhor opção. Além de acelerar o processo, ela reduz significativamente as chances de erro, principalmente em relação a proporções e posicionamento dos elementos.
Depois disso, entra uma etapa fundamental que muitos ignoram: a calibração das medidas.
Ou seja, você precisa ajustar a escala do desenho para que ele represente exatamente as dimensões reais do imóvel. Por exemplo, se uma parede tem 2,80 metros na vida real, ela precisa ter essa mesma proporção dentro do projeto.
Isso garante que:
Portanto, sem essa calibração, mesmo um projeto visualmente bonito pode apresentar erros técnicos na prática.

Em seguida, você deve definir cada ambiente corretamente dentro do projeto.
Essa etapa é fundamental, porque cada cômodo possui exigências específicas de acordo com a norma NBR 5410. Ou seja, não é apenas uma questão de organização — é uma exigência técnica que impacta diretamente na quantidade de tomadas, pontos de iluminação e até na divisão dos circuitos.
No nosso exemplo, temos os seguintes ambientes:
Cada um desses espaços possui regras diferentes. Por exemplo, a cozinha e o banheiro exigem maior quantidade de tomadas e pontos específicos devido aos equipamentos utilizados. Já os quartos e a sala seguem outros critérios mínimos.
Além disso, ao classificar corretamente cada ambiente no projeto, você permite que o sistema — ou até mesmo você, de forma manual — aplique automaticamente as exigências mínimas da norma.
👉 Em outras palavras, você evita erros, garante conformidade técnica e ganha muito mais agilidade no desenvolvimento do projeto.
Portanto, essa etapa não deve ser ignorada. Pelo contrário, ela é essencial para quem realmente quer aprender como fazer projeto elétrico residencial de forma correta, segura e profissional.

Logo depois, é fundamental definir corretamente onde ficará o quadro de distribuição, pois ele é o “coração” de toda a instalação elétrica.
É nesse ponto que todos os circuitos da casa se concentram, e qualquer erro de posicionamento pode dificultar tanto a instalação quanto futuras manutenções.
Por isso, o ideal é escolher um local estratégico, como:
Além disso, é importante evitar locais úmidos, de difícil acesso ou escondidos, pois isso pode comprometer a segurança e a praticidade no dia a dia.
Dessa forma, ao posicionar corretamente o quadro de distribuição, você otimiza o trajeto dos circuitos, reduz a quantidade de cabos utilizados e, consequentemente, torna a instalação mais simples, organizada e eficiente.

Agora começa, de fato, a parte prática do projeto.
Nesse momento, você vai definir todos os pontos elétricos da residência. Isso pode ser feito manualmente, quando você quer um controle mais detalhado, ou automaticamente, utilizando ferramentas que seguem a norma.
Entre os principais pontos que devem ser inseridos, estão:
No entanto, não basta apenas sair posicionando esses pontos de qualquer forma.
É fundamental seguir as exigências da norma, principalmente a NBR 5410, que define a quantidade mínima e a distribuição correta desses elementos em cada ambiente.
Além disso, o projeto precisa considerar as cargas elétricas reais da residência. Ou seja, você deve prever equipamentos que consomem mais energia, como:
Por exemplo, a cozinha exige mais tomadas e circuitos específicos, enquanto o banheiro precisa de atenção especial por causa do chuveiro e das condições de segurança.
Portanto, ao aprender como fazer projeto elétrico residencial, você percebe que essa etapa vai muito além de simplesmente posicionar símbolos no desenho.
Na prática, você está garantindo que o sistema funcione corretamente, sem sobrecargas, com segurança e atendendo às necessidades reais do cliente.
Ou seja, um bom projeto não é apenas bonito — ele é funcional, seguro e tecnicamente correto.
Na sequência, é necessário criar os circuitos elétricos — e essa é uma das etapas mais importantes do projeto.
Isso porque não basta apenas ligar todos os pontos em um único circuito. Pelo contrário, você precisa organizar a instalação de forma estratégica, garantindo segurança, eficiência e conformidade com a norma.
Aqui entram alguns pontos fundamentais:
Primeiramente, você deve separar os circuitos de acordo com o tipo de uso. Ou seja, iluminação, tomadas e equipamentos de maior potência não devem ficar no mesmo circuito.
Além disso, cada circuito precisa ter sua carga corretamente definida. Isso inclui somar as potências dos equipamentos ligados a ele, como chuveiro, ar-condicionado e tomadas específicas.
Em seguida, é necessário calcular a demanda, que representa o consumo real esperado. Esse cálculo evita superdimensionamento ou subdimensionamento do sistema.
Por fim, em instalações com mais de uma fase, é essencial distribuir as cargas de forma equilibrada. Isso evita sobrecarga em apenas uma fase e melhora o desempenho da instalação.
Na prática, isso significa criar circuitos bem definidos, como por exemplo:
Dessa forma, você garante que cada parte da instalação funcione corretamente, sem riscos de aquecimento excessivo, quedas de energia ou danos aos equipamentos.
Portanto, entender essa etapa é essencial para quem quer dominar de verdade como fazer projeto elétrico residencial e entregar um trabalho seguro e profissional.

Depois disso, você precisa definir o caminho dos eletrodutos, ou seja, por onde os cabos irão passar dentro da instalação.
Essa etapa é fundamental, pois influencia diretamente na organização do projeto, na facilidade de execução e até na manutenção futura.
O lançamento dos eletrodutos pode ser feito de duas formas:
✔ Manual — quando você define trajeto por trajeto, escolhendo exatamente por onde cada circuito vai passar. Essa opção é mais comum quando você precisa de um controle mais detalhado do projeto.
✔ Automático — utilizando softwares especializados, como o eCAD Labs, que traçam os caminhos de forma inteligente com base na planta e nos pontos inseridos. Isso agiliza muito o processo e reduz erros.
Além disso, é importante entender que alguns equipamentos não podem compartilhar o mesmo circuito com outros pontos da instalação.
Por exemplo:
Esses equipamentos possuem maior potência e, portanto, exigem circuitos dedicados.
Ou seja, na prática, cada um deles deve ter seu próprio eletroduto saindo diretamente do quadro de distribuição até o ponto de consumo.
Dessa forma, você evita sobrecargas, melhora a segurança da instalação e garante que o sistema funcione de maneira mais eficiente e confiável.

Com tudo definido — ou seja, pontos de iluminação, tomadas, circuitos e cargas — o próximo passo é gerar o diagrama unifilar.
Esse diagrama é, basicamente, uma representação simplificada de todo o sistema elétrico. Ou seja, ele mostra de forma clara como a energia sai da alimentação principal e se distribui por todos os circuitos da residência.
Nele, você consegue visualizar informações fundamentais como:
Além disso, o diagrama unifilar facilita muito a leitura do projeto, tanto para quem vai executar quanto para quem precisa analisar ou aprovar.
Na prática, isso significa mais organização, menos erro na execução e mais segurança na instalação.
Por isso, ele não é apenas um detalhe do projeto — é uma etapa essencial para garantir que tudo funcione corretamente e também para apresentar um trabalho realmente profissional ao cliente.

Por fim, um projeto profissional não se resume apenas ao desenho da planta. Ele precisa reunir um conjunto de informações técnicas que garantem clareza, segurança e organização na execução.
Por isso, um projeto bem elaborado deve conter:
Além disso, essa organização não serve apenas para “deixar bonito”. Na prática, ela facilita a execução, reduz erros e transmite muito mais profissionalismo ao cliente.
Consequentemente, um projeto bem estruturado aumenta o valor percebido do seu trabalho e fortalece sua autoridade como eletricista.
E é justamente aqui que está a grande diferença: enquanto muitos profissionais apenas executam serviços, quem domina esse processo realmente sabe como fazer projeto elétrico residencial de forma profissional e se destaca no mercado.

Hoje, ferramentas como o eCAD Labs permitem que você leve seus projetos para um nível muito mais profissional.
Com ele, você consegue criar projetos mais rápidos, já que grande parte do processo é automatizado. Ou seja, tarefas que antes levavam horas podem ser feitas em poucos minutos.
Além disso, o sistema automatiza cálculos importantes, como dimensionamento de circuitos, demanda e balanceamento de fases. Isso reduz a necessidade de cálculos manuais e, consequentemente, diminui as chances de erro.
Outro ponto importante é que você consegue reduzir erros na elaboração do projeto, já que o software segue padrões técnicos e ajuda na organização de todos os elementos.
Da mesma forma, você pode gerar documentação completa automaticamente, incluindo planta elétrica, diagrama unifilar, tabelas e identificação do projeto — tudo pronto para apresentar ao cliente.
Além disso, o sistema trabalha com base em normas atualizadas, como a NBR 5410, garantindo que seu projeto esteja dentro das exigências técnicas.
Por fim, você ainda consegue desenvolver projetos residenciais e industriais no mesmo ambiente, o que aumenta sua produtividade, padroniza seu trabalho e facilita muito o dia a dia como profissional.

Em resumo, aprender como fazer projeto elétrico residencial vai muito além de simplesmente desenhar uma planta.
Na prática, você precisa compreender alguns pilares essenciais. Por exemplo, a distribuição correta das cargas, que garante que o sistema funcione sem sobrecargas. Além disso, é fundamental conhecer as normas técnicas, como a NBR 5410, que define os critérios mínimos de segurança e funcionamento.
Da mesma forma, a organização dos circuitos é indispensável, pois ela evita problemas futuros e facilita tanto a manutenção quanto a execução do projeto. E não para por aí: o posicionamento estratégico dos pontos elétricos também faz toda a diferença no conforto e na usabilidade do ambiente.
Portanto, quando você domina todos esses aspectos, deixa de ser apenas um instalador e passa a atuar como um profissional completo.
Além disso, esse conhecimento permite que você entregue projetos mais organizados, mais seguros e com maior valor percebido pelo cliente. Consequentemente, você consegue cobrar melhor pelos seus serviços.
Ou seja, quem realmente entende como fazer projeto elétrico residencial sai da guerra de preço e passa a competir por profissionalismo, qualidade e confiança.
👉 E se você quer acelerar esse processo e criar projetos completos em menos de 20 minutos, com cálculos automáticos e documentação profissional, vale a pena conhecer o eCAD Labs. Com ele, você transforma seu conhecimento em projetos organizados, padronizados e prontos para entrega.
Agora me conta: você já desenvolve seus próprios projetos elétricos ou ainda trabalha apenas na execução? 🚀
Deixe o seu comentário